Unique One of a Kind Property In Bolton Spread Over Three Superb Levels
Finished to a High Standard Throughout with Underfloor Heating
Stunning Open Plan Kitchen/Diner/Family Room with Appliances
Separate Utility Room
Extensive Gated Driveway Parking for Multiple Vehicles & Double Garage
Beautiful Garden, Balcony Terrace & Amazing Views of the Adjacent Cricket Ground & the Pennines
Close to local amenities
Close to outstanding schools both primary and secondary
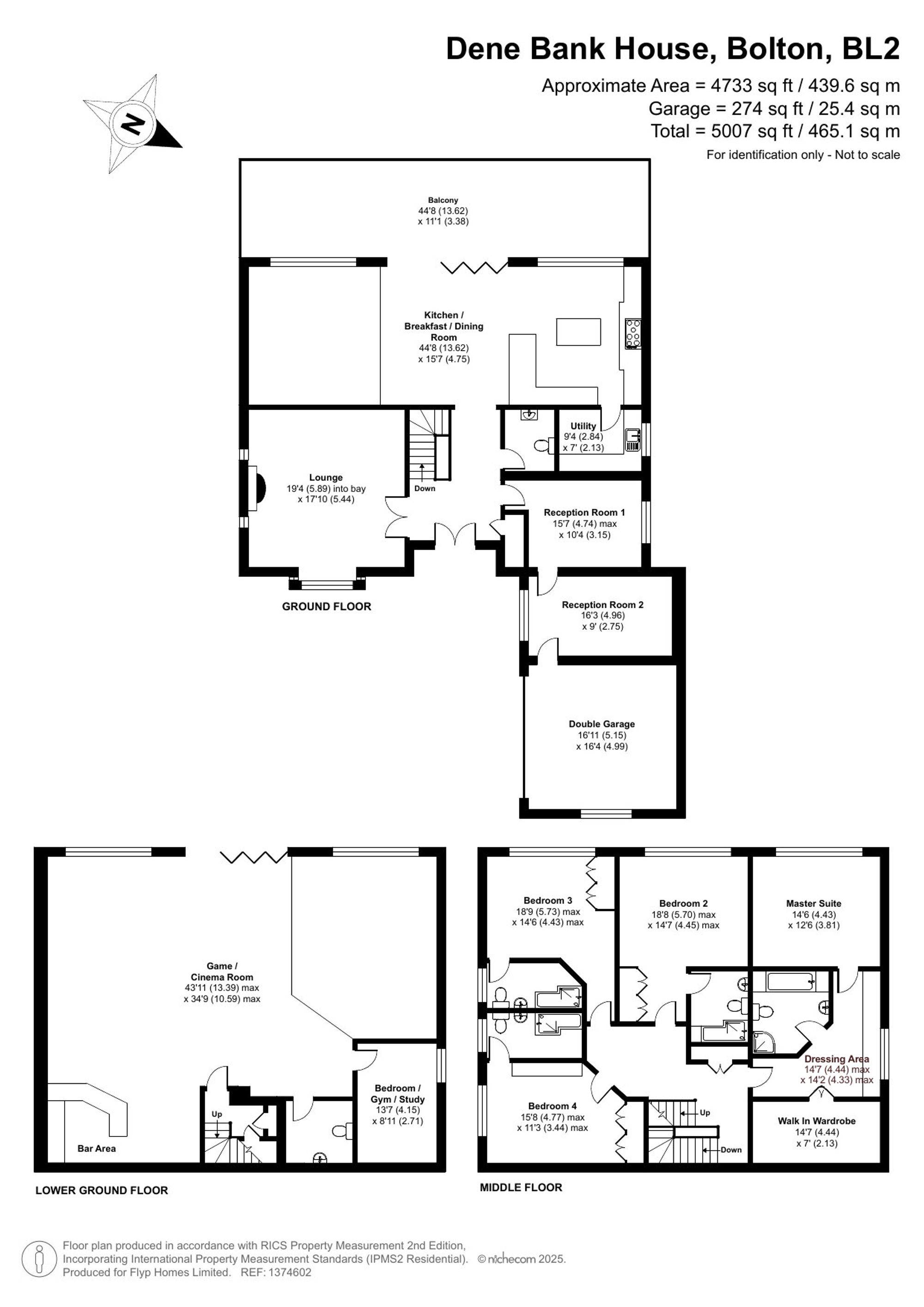
Nestled in the serene neighbourhood of Bolton, this four-bedroom detached house stands as a symbol of elegance and luxury. Spread over three levels, this unique property is a true one-of-a-kind gem in the area.
Each of the four bedrooms boasts its own en-suite bathroom, offering unparallelled comfort and privacy for all residents. The property has been meticulously finished to a high standard, featuring underfloor heating throughout for added warmth and luxury.
One of the highlights of this home is the stunning open plan kitchen/diner/family room. Equipped with modern appliances, this space is perfect for hosting gatherings or simply enjoying cosy family meals. For added convenience, there is a separate utility room, ensuring that household chores are a breeze.
Outside, the property impresses with its extensive gated driveway parking, providing space for multiple vehicles, along with a double garage for further storage or parking needs. The beautiful garden adds a touch of tranquillity to the property, while the balcony terrace offers a spot to soak in the surroundings and enjoy the breathtaking views of the adjacent cricket ground and the magnificent Pennines.
Conveniently located, this property is within easy reach of local amenities, ensuring that daily essentials are always close at hand. For families, the property's proximity to outstanding primary and secondary schools is a definite advantage, offering quality education options for children of all ages.
In conclusion, this property combines luxurious living with practicality, offering a truly exceptional living experience for its future residents. Experience the epitome of modern living in this meticulously designed home.
Luxury, comfort, and convenience await in this remarkable property.
Location
Description
Four bedroom detached property
Each bedroom has an en-suite
Unique One of a Kind Property In Bolton Spread Over Three Superb Levels
Finished to a High Standard Throughout with Underfloor Heating
Stunning Open Plan Kitchen/Diner/Family Room with Appliances
Separate Utility Room
Extensive Gated Driveway Parking for Multiple Vehicles & Double Garage
Beautiful Garden, Balcony Terrace & Amazing Views of the Adjacent Cricket Ground & the Pennines
Close to local amenities
Close to outstanding schools both primary and secondary
Nestled in the serene neighbourhood of Bolton, this four-bedroom detached house stands as a symbol of elegance and luxury. Spread over three levels, this unique property is a true one-of-a-kind gem in the area.
Each of the four bedrooms boasts its own en-suite bathroom, offering unparallelled comfort and privacy for all residents. The property has been meticulously finished to a high standard, featuring underfloor heating throughout for added warmth and luxury.
One of the highlights of this home is the stunning open plan kitchen/diner/family room. Equipped with modern appliances, this space is perfect for hosting gatherings or simply enjoying cosy family meals. For added convenience, there is a separate utility room, ensuring that household chores are a breeze.
Outside, the property impresses with its extensive gated driveway parking, providing space for multiple vehicles, along with a double garage for further storage or parking needs. The beautiful garden adds a touch of tranquillity to the property, while the balcony terrace offers a spot to soak in the surroundings and enjoy the breathtaking views of the adjacent cricket ground and the magnificent Pennines.
Conveniently located, this property is within easy reach of local amenities, ensuring that daily essentials are always close at hand. For families, the property's proximity to outstanding primary and secondary schools is a definite advantage, offering quality education options for children of all ages.
In conclusion, this property combines luxurious living with practicality, offering a truly exceptional living experience for its future residents. Experience the epitome of modern living in this meticulously designed home.
Luxury, comfort, and convenience await in this remarkable property.
Luxurious 4-bed detached house in Bolton. Unique gem with en-suite bathrooms. High standard finishes, underfloor heating. Stunning open plan kitchen/diner/family room....
Luxurious 4-bed detached house in Bolton. Unique gem with en-suite bathrooms. High standard finishes, underfloor heating. Stunning open plan kitchen/diner/family room....
Luxurious 4-bed detached house in Bolton. Unique gem with en-suite bathrooms. High standard finishes, underfloor heating. Stunning open plan kitchen/diner/family room....